Feriendomizil für Städter

Visperterminen

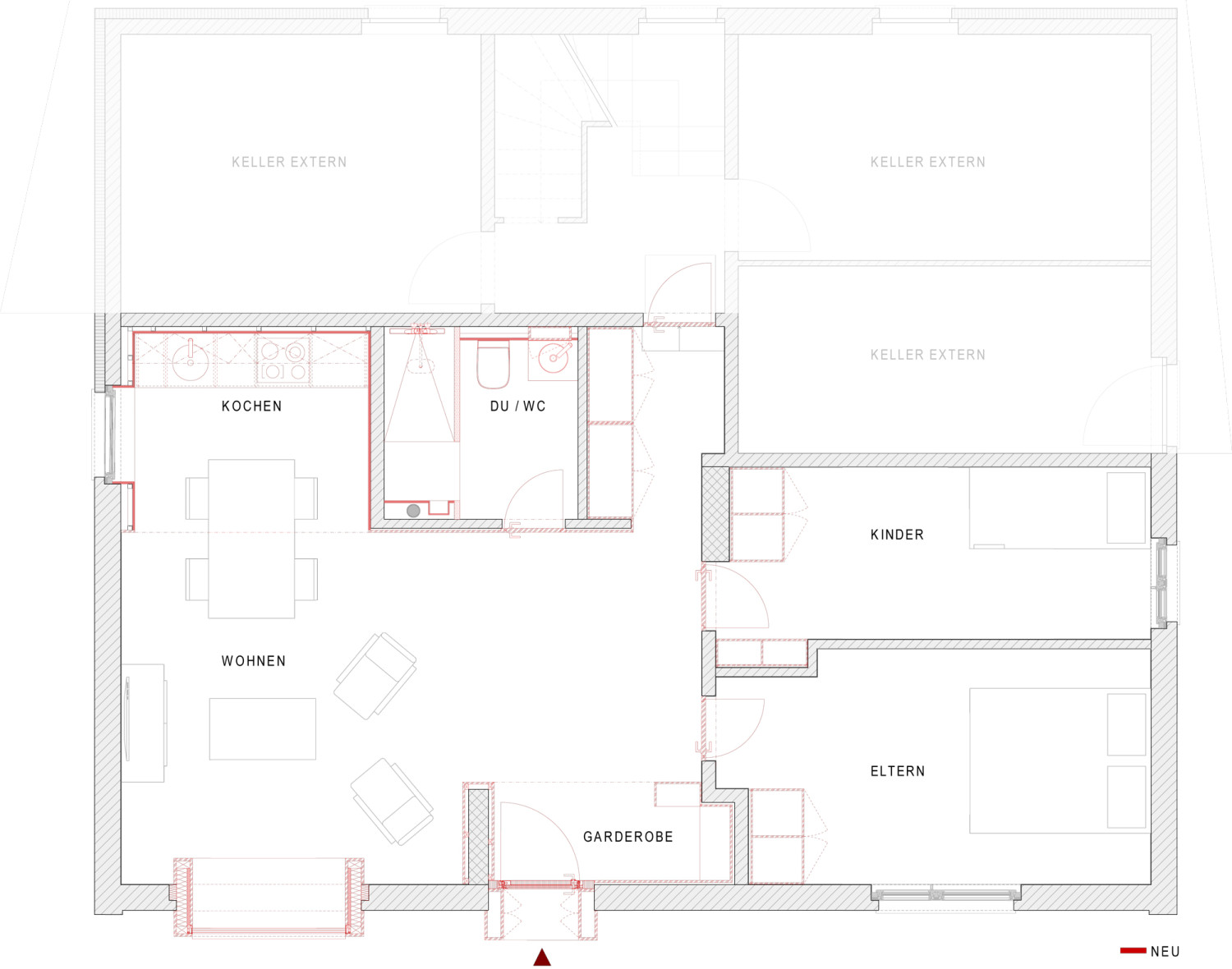
Im Jahr 1970 wurde das damalige Geschäftslokal zu einer Wohnung umgebaut. 45 Jahre später ist die inzwischen in Luzern wohnhafte Bauherrschaft an das BAUATELIER12 herangetreten mit dem Wunsch, die in die Jahre gekommene Wohnung zu einem zeitgemässen Feriendomizil auszubauen.Das Entwurfskonzept sieht drei Boxen vor, in welchen unterschiedliche Funktionen untergebracht sind. Diese werden in das bestehende Raumprogramm platziert. Durch den grosszügigen Einsatz von Holz wird der reduzierten Architektur ein heimeliger Charakter verliehen.  In die Boxen integrierte LED Lichtbänder sorgen zudem für stimmungsvolle Akzente. In die über die Fassade hinauskragende Fensternische wurde eine rahmenlose Panorama-verglasung gesetzt. Diese gibt einen einmaligen Blick über die Dachlandschaft des alten Dorfkerns von Visperterminen frei und lädt mit ihrem einzigartigen Weitblick zu verweilen ein. Mit wenigen, gezielten Eingriffen wurde der jungen Familie so ein gemütlicher Rückzugsort aus dem hektischen Stadtleben geschaffen.

---

Bauherrschaft: Privat
Bauzeit: 2016
Ort: Visperterminen
Fotografie: Adrian Ritz

Zurück